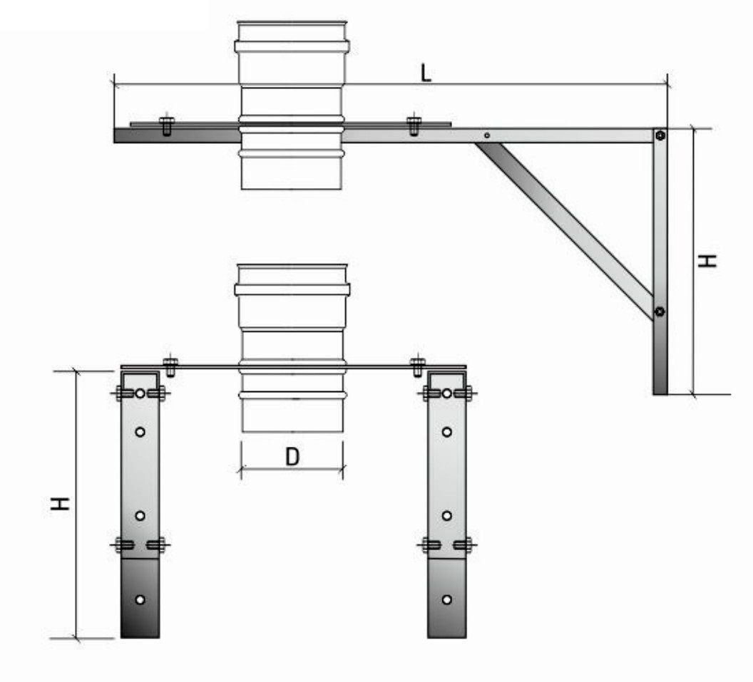
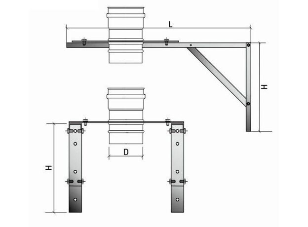
Крепление регулируемое КР 1200
e8aacaac4185
Доставка в Волгоград
Удобство оплаты
Почему звонить в Очаг уже сейчас?
- Единая цена по всей России
- Бесплатная доставка
- Понимаем любой бюджет
- Считаем ВСЕ варианты
- Инструкции и видео для Монтажа
- Доступно, Оперативно, Профессионально
- Более 2 000 монтажей за 17 лет
Примеры работ #Степан_Знает
Видео галерея
Описание
Характеристики
Общие
Производитель:
Страна-производитель:
Россия
Назначение дымохода:
- Дымоходы для каминов
Материал дымохода:
Нержавеющая сталь
Тип элемента дымохода:
Особенности
Цвет дымохода:
Нержавеющая сталь












