Каминная топка Brunner Stil Lift 75/90
615ba349227b
Доставка в Волгоград
Удобство оплаты
Почему звонить в Очаг уже сейчас?
- Единая цена по всей России
- Бесплатная доставка
- Понимаем любой бюджет
- Считаем ВСЕ варианты
- Инструкции и видео для Монтажа
- Доступно, Оперативно, Профессионально
- Более 2 000 монтажей за 17 лет
Примеры работ #Степан_Знает
Видео галерея
Описание
Характеристики
Общие
Производитель:
Страна-производитель:
Германия
Остекление:
Материал корпуса:
Материал топки:
- Шамот
Конструкция топки:
Стекло с подъемом вверх:
Да
Боковое стекло:
Нет
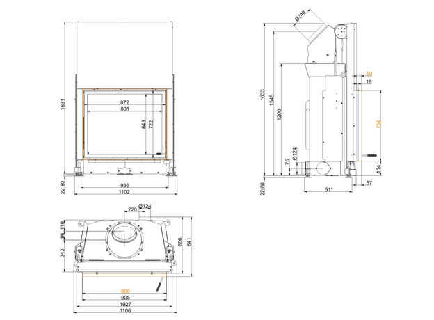
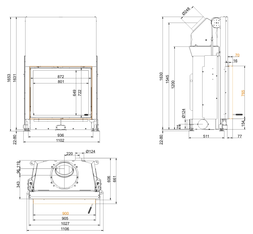
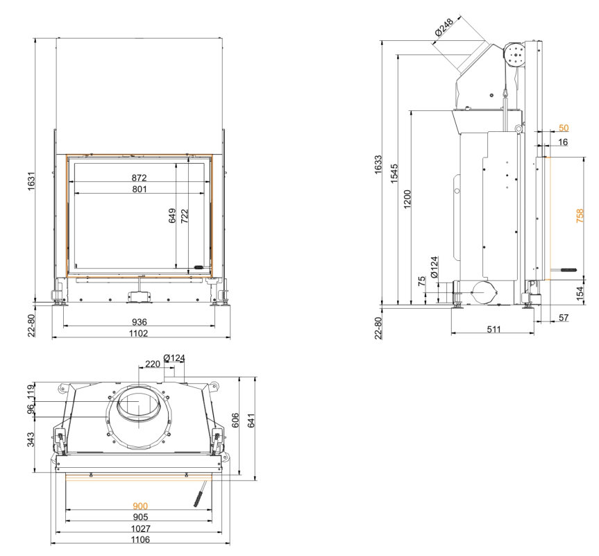
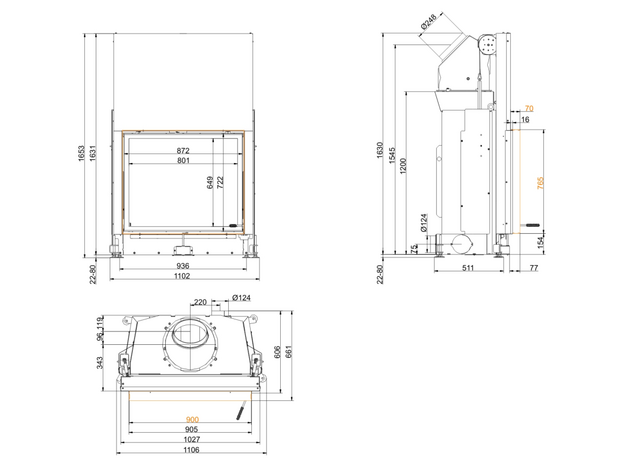
Размеры
Диаметр дымохода:
250 мм
Общая ширина:
1106 мм
Общая глубина:
641 мм
Общая высота:
1631 мм
Общий вес:
253 кг
Высота рамки:
758 мм
Ширина рамки:
872 мм
Производительность
Мощность:
13 кВт
КПД:
80%
Площадь отопления:
130 м²
Объем отопления:
325 м³
Использование для отопления:












