Каминная топка Fireway Dagmar
e9c947abb0e3
Доставка в Волгоград
Удобство оплаты
Почему звонить в Очаг уже сейчас?
- Единая цена по всей России
- Бесплатная доставка
- Понимаем любой бюджет
- Считаем ВСЕ варианты
- Инструкции и видео для Монтажа
- Доступно, Оперативно, Профессионально
- Более 2 000 монтажей за 17 лет
Примеры работ #Степан_Знает
Видео галерея
Описание
Характеристики
Общие
Производитель:
Страна-производитель:
Россия
Остекление:
Материал корпуса:
Материал топки:
- Чугун
Конструкция топки:
Размеры
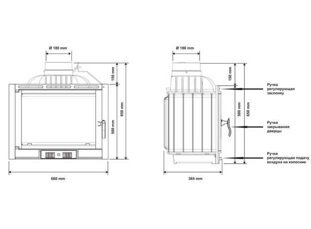
Диаметр дымохода:
180 мм
Общая ширина:
660 мм
Общая глубина:
365 мм
Общая высота:
650 мм
Общий вес:
84 кг
Высота рамки:
318 мм
Ширина рамки:
504 мм
Производительность
Мощность:
10 кВт
КПД:
75%
Площадь отопления:
100 м²
Объем отопления:
250 м³
Использование для отопления:
Прикрепленные файлы












