Каминная топка Romotop Heat R/L 3G L 81.51.40.01
370e99ca0cca
Доставка в Волгоград
Удобство оплаты
Почему звонить в Очаг уже сейчас?
- Единая цена по всей России
- Бесплатная доставка
- Понимаем любой бюджет
- Считаем ВСЕ варианты
- Инструкции и видео для Монтажа
- Доступно, Оперативно, Профессионально
- Более 2 000 монтажей за 17 лет
Примеры работ #Степан_Знает
Видео галерея
Описание
Характеристики
Общие
Производитель:
Страна-производитель:
Чехия
Остекление:
Материал корпуса:
Материал топки:
- Вермикулит
Конструкция топки:
Стекло с подъемом вверх:
Да
Размеры
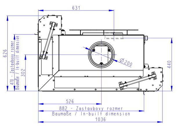
Диаметр дымохода:
200 мм
Общая ширина:
1036 мм
Общая глубина:
626 мм
Общая высота:
1357 мм
Общий вес:
260 кг
Высота рамки:
470 мм
Ширина рамки:
810 мм
Производительность
Мощность:
10,8 кВт
КПД:
83,2%
Площадь отопления:
110 м²
Объем отопления:
275 м³
Использование для отопления:












