Печь-камин Astov П4С 600 Ферро
65793a8e64c8
Доставка в Волгоград
Удобство оплаты
Почему звонить в Очаг уже сейчас?
- Единая цена по всей России
- Бесплатная доставка
- Понимаем любой бюджет
- Считаем ВСЕ варианты
- Инструкции и видео для Монтажа
- Доступно, Оперативно, Профессионально
- Более 2 000 монтажей за 17 лет
Примеры работ #Степан_Знает
Видео галерея
Описание
Характеристики
Общие
Производитель:
Страна-производитель:
Россия
Материал отделки:
Материал топки:
- Шамот
Тип печи:
Размеры
Диаметр дымохода:
200 мм
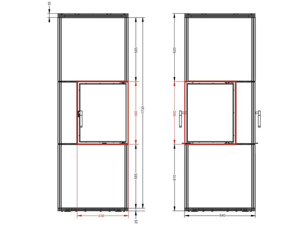
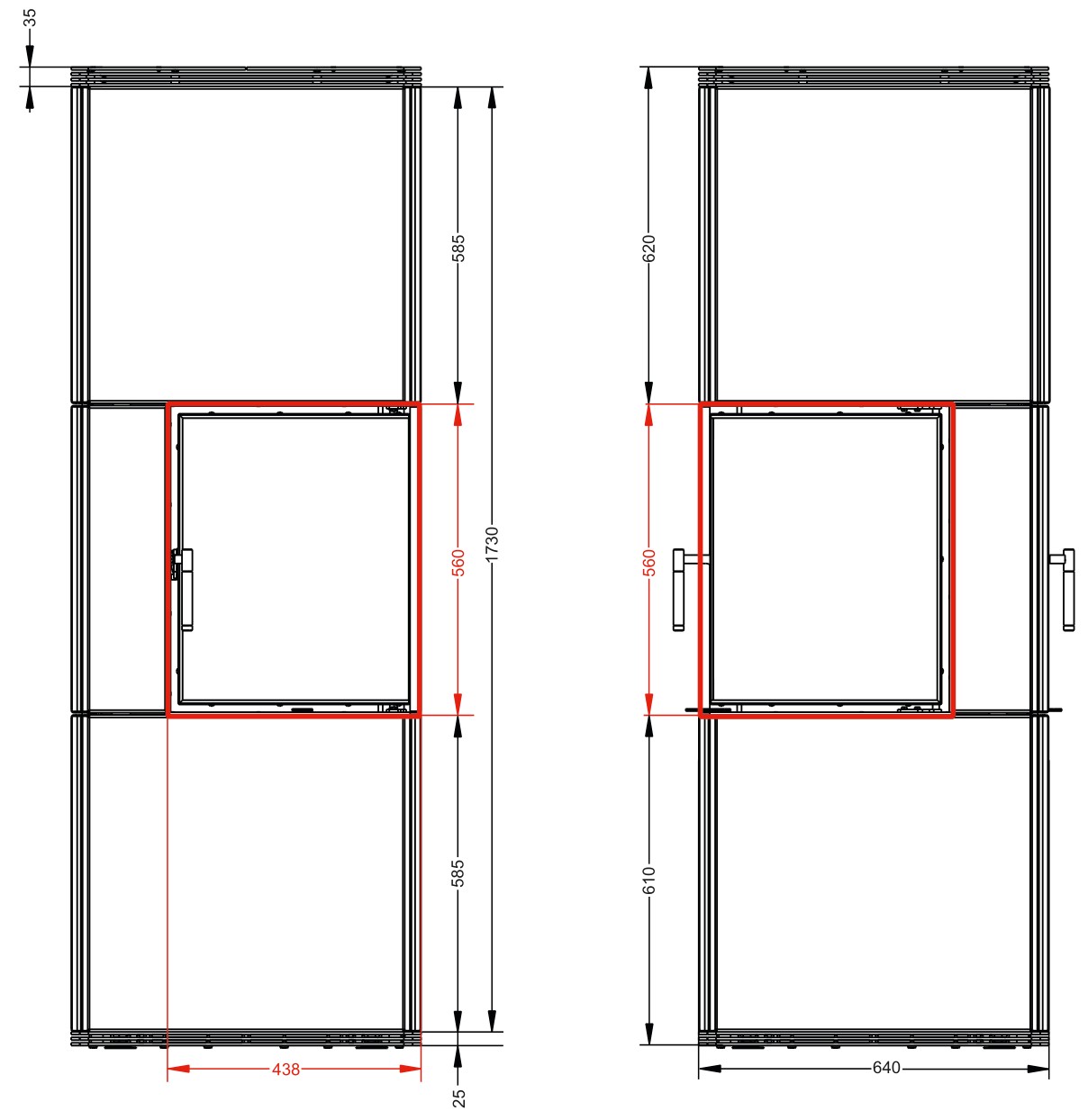
Общая ширина:
640 мм
Общая глубина:
640 мм
Общая высота:
1790 мм
Общий вес:
260 кг
Производительность
Мощность:
5 кВт
КПД:
82%
Площадь отопления:
50 м²
Объем отопления:
125 м³
Использование для отопления:
Прикрепленные файлы












